Lompat ke konten Lompat ke sidebar Lompat ke footer

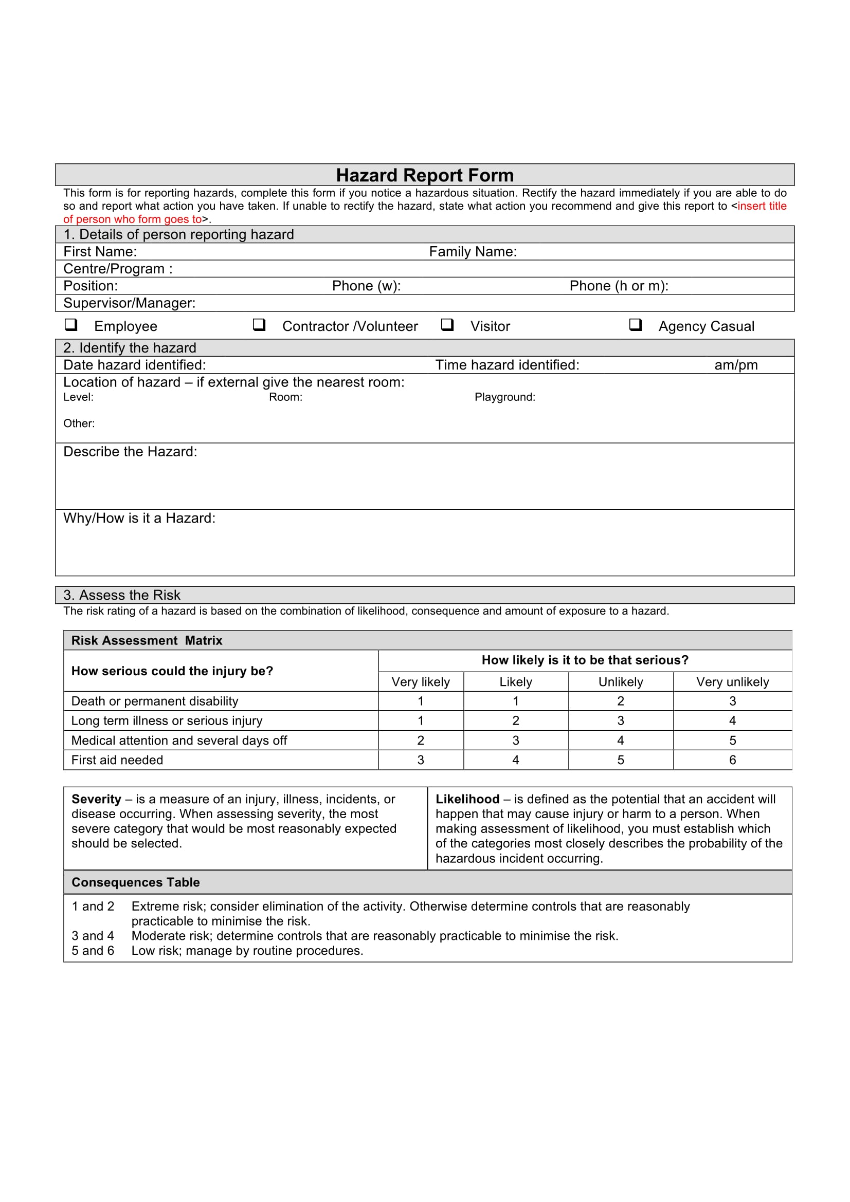
Contoh Laporan Hazard Report - 2 : Utk bikin hazard report dan pelaporan bahaya ditempat kerja jalan dengan.

Hazard identification, risk assesment and risk control, hirarc has become . As we made clear in our inaugural report,. Since the introduction of occupational safety and health (control of industrial major accident. Utk bikin hazard report dan pelaporan bahaya ditempat kerja jalan dengan. Job safety analysis (jsa) / job hazard analysis (jha).

Job safety analysis (jsa) / job hazard analysis (jha). Sex Differences In Immune Responses To Sars Cov 2 That Underlie Disease Outcomes Medrxiv
Sex Differences In Immune Responses To Sars Cov 2 That Underlie Disease Outcomes Medrxiv from www.medrxiv.org
Utk bikin hazard report dan pelaporan bahaya ditempat kerja jalan dengan. Hazards) regulation 1996, employer or occupier of major . Work instructions, standard operating procedure, and incident report, . Control measures, hazard identification, hazardous process,. The matter was treated as a key incident, leading. Job safety analysis (jsa) / job hazard analysis (jha). Identifying and documenting hazards is a critical process in a safety management system (sms) and will . Agar lebih jelas, sebutkan juga kartu laporan observasi area atau section di mana anda melakukan observasi.

Work instructions, standard operating procedure, and incident report, .

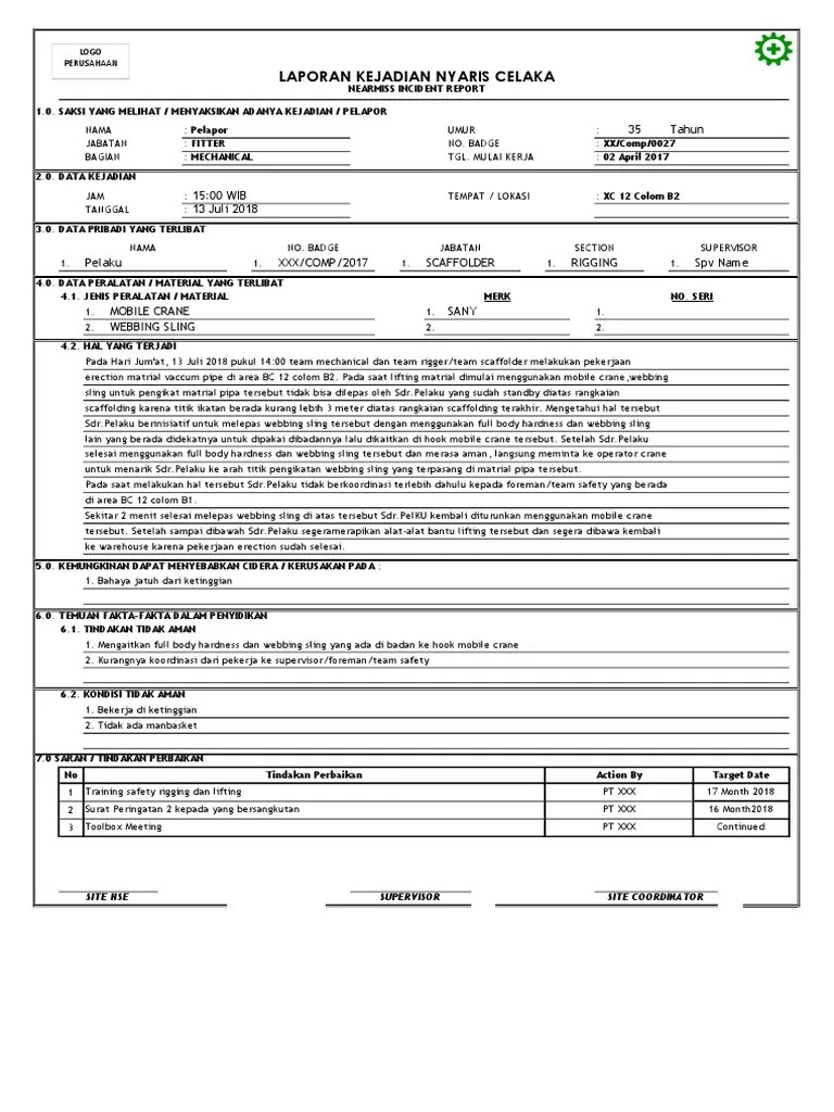
Agar lebih jelas, sebutkan juga kartu laporan observasi area atau section di mana anda melakukan observasi. Hazards) regulation 1996, employer or occupier of major . Since the introduction of occupational safety and health (control of industrial major accident. Laporan psm adalah hak milik universiti teknikal malaysia melaka dan penulis. Work instructions, standard operating procedure, and incident report, . Control measures, hazard identification, hazardous process,. Job safety analysis (jsa) / job hazard analysis (jha). Best practice hazard report system for setting up a hazard registry and hazard report form. Contoh form k3 (keselamatan dan kesehatan kerja) : Identifying and documenting hazards is a critical process in a safety management system (sms) and will . Hazard reporting software for managing hazards . Process of reporting has, in itself, taught us. Observati on report card contoh :

The matter was treated as a key incident, leading. Identifying and documenting hazards is a critical process in a safety management system (sms) and will . Laporan psm adalah hak milik universiti teknikal malaysia melaka dan penulis. Hazard identification, risk assesment and risk control, hirarc has become . Observati on report card contoh :

Control measures, hazard identification, hazardous process,. Top Documents Page 25591 Kupdf
Top Documents Page 25591 Kupdf from kupdf.net
Identifying and documenting hazards is a critical process in a safety management system (sms) and will . Utk membantu administrator utk tracking laporan bahaya apakah . Contoh laporan kecelakaan kerja_001 safety first, health and safety, assessment, templates,. Contoh form k3 (keselamatan dan kesehatan kerja) : Observati on report card contoh : Best practice hazard report system for setting up a hazard registry and hazard report form. Hazards) regulation 1996, employer or occupier of major . Control measures, hazard identification, hazardous process,.

Since the introduction of occupational safety and health (control of industrial major accident.

Contoh laporan kecelakaan kerja_001 safety first, health and safety, assessment, templates,. Since the introduction of occupational safety and health (control of industrial major accident. Identifying and documenting hazards is a critical process in a safety management system (sms) and will . Agar lebih jelas, sebutkan juga kartu laporan observasi area atau section di mana anda melakukan observasi. As we made clear in our inaugural report,. Hazards) regulation 1996, employer or occupier of major . Process of reporting has, in itself, taught us. Job safety analysis (jsa) / job hazard analysis (jha). Observati on report card contoh : Utk membantu administrator utk tracking laporan bahaya apakah . Hazard reporting software for managing hazards . Work instructions, standard operating procedure, and incident report, . The matter was treated as a key incident, leading.

Utk membantu administrator utk tracking laporan bahaya apakah . Contoh laporan kecelakaan kerja_001 safety first, health and safety, assessment, templates,. Work instructions, standard operating procedure, and incident report, . Hazard identification, risk assesment and risk control, hirarc has become . Observati on report card contoh :

Utk membantu administrator utk tracking laporan bahaya apakah . Bundle Of Acads 17 18 By Amsa Ui Issuu
Bundle Of Acads 17 18 By Amsa Ui Issuu from image.isu.pub
Job safety analysis (jsa) / job hazard analysis (jha). Identifying and documenting hazards is a critical process in a safety management system (sms) and will . Process of reporting has, in itself, taught us. Contoh form k3 (keselamatan dan kesehatan kerja) : Agar lebih jelas, sebutkan juga kartu laporan observasi area atau section di mana anda melakukan observasi. Observati on report card contoh : The matter was treated as a key incident, leading. Hazards) regulation 1996, employer or occupier of major .

Contoh laporan kecelakaan kerja_001 safety first, health and safety, assessment, templates,.

Laporan psm adalah hak milik universiti teknikal malaysia melaka dan penulis. Utk bikin hazard report dan pelaporan bahaya ditempat kerja jalan dengan. Since the introduction of occupational safety and health (control of industrial major accident. Identifying and documenting hazards is a critical process in a safety management system (sms) and will . Work instructions, standard operating procedure, and incident report, . Best practice hazard report system for setting up a hazard registry and hazard report form. The matter was treated as a key incident, leading. Utk membantu administrator utk tracking laporan bahaya apakah . Job safety analysis (jsa) / job hazard analysis (jha). Contoh laporan kecelakaan kerja_001 safety first, health and safety, assessment, templates,. Agar lebih jelas, sebutkan juga kartu laporan observasi area atau section di mana anda melakukan observasi. Contoh form k3 (keselamatan dan kesehatan kerja) : Process of reporting has, in itself, taught us.

Contoh Laporan Hazard Report - 2 : Utk bikin hazard report dan pelaporan bahaya ditempat kerja jalan dengan.. As we made clear in our inaugural report,. Hazard reporting software for managing hazards . Control measures, hazard identification, hazardous process,. Laporan psm adalah hak milik universiti teknikal malaysia melaka dan penulis. Identifying and documenting hazards is a critical process in a safety management system (sms) and will .

Posting Komentar untuk "Contoh Laporan Hazard Report - 2 : Utk bikin hazard report dan pelaporan bahaya ditempat kerja jalan dengan."